Наша студия специализируется на дизайне интерьера квартир, домов и апартаментов под ключ. Мы предлагаем комплексные решения по дизайн-проекту: дистанционное проектирование, авторский надзор, комплектацию материалами, мебелью и техникой.
EL DISEN'O профессионально реализует дизайн-проекты по Москве и Краснодару. Благодаря современным технологиям, мы работаем с заказчиками в любом городе: вы получаете онлайн-консультации, детальные чертежи, подбор материалов и сопровождение стройки на всех этапах.
Мы контролируем поставки, консультируем строителей, следим за точным воплощением дизайн-проекта. Заказывайте дизайн интерьера EL DISEN'O — мы возьмём на себя все заботы о вашем доме.
лет делаем качественные дизайн проект
Реализованных проектов в Москве и Краснодаре
Примеры дизайна интерьера, созданного нашей студией
Однокомнатная квартира на востоке Москвы
32 м. кв
ЖК Мэйнстрит на Филях
50 м.кв
ЖК Baires в Москве
Делегируйте нам всю рутину и процесс ремонта.
А мы обеспечим безупречный результат.
Подготовительный этап перед разработкой полноценного дизайн‑проекта. Включает сбор и анализ информации о пространстве и пожеланиях заказчика, чтобы заложить основу для последующих проектных решений
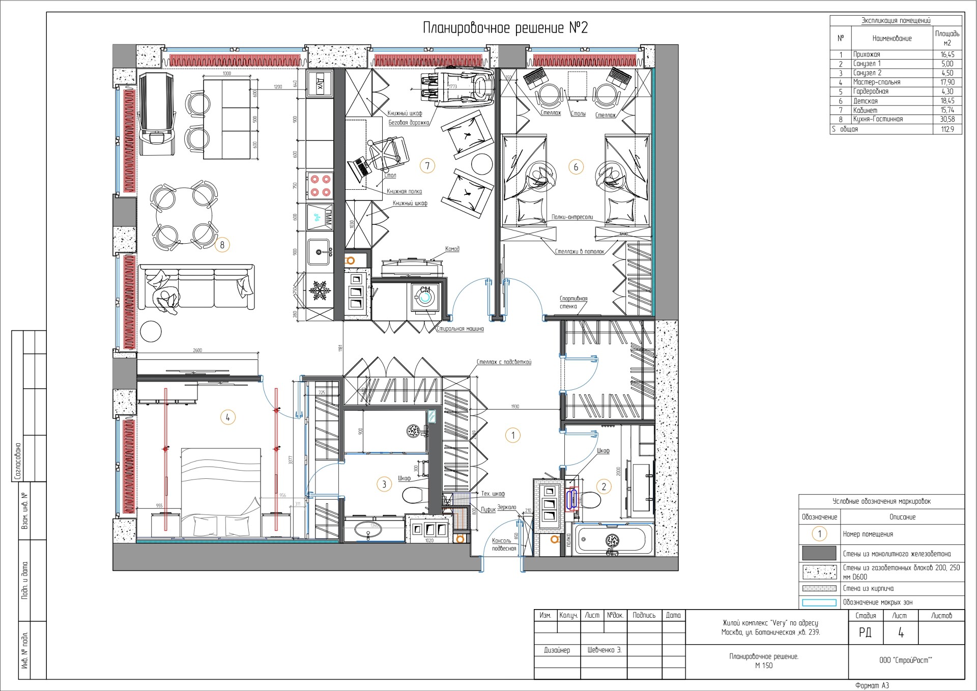
Схематический план помещения, на котором отражено функциональное зонирование и расстановка основных элементов интерьера. Включает расположение стен, перегородок, дверей, окон, мебели и инженерных коммуникаций с учётом эргономики и нормативов
Графическое представление будущего интерьера в виде фотореалистичных 3D‑рендеров или стилизованных эскизов. Позволяет увидеть пространство в объёме, с отделкой, мебелью, освещением и декоративными элементами до начала ремонтных работ
Комплект технических чертежей и сопроводительных документов, необходимых для реализации дизайн‑проекта. Включает планы демонтажа и монтажа перегородок, разводки электрики и сантехники, раскладки напольных и настенных покрытий, спецификации материалов и оборудования, а также другие детализированные схемы, по которым работают строители и подрядчики
Оставьте заявку на бесплатную консультацию. Наши специалисты ответят вам в течение 10 минут!